X




>

上海190㎡意式简约焕新居 | 三口之家别墅改造,打造舒适生活新高度

浏览:425 作者:境远装饰 分享:

坐标:上海宝山区

面积:190㎡

户型:下叠别墅

风格:意式简约

案例背景

当晨曦温柔地穿透天井的缝隙,斑驳光影在客厅的每一寸空间轻盈起舞,家的温馨在那一刻悄然绽放。夜幕低垂,地下室化作光影的魔法屋,荧幕与灯光交相辉映,点亮了属于夜晚的无限遐想,一日的辛劳在此刻卸下。

围坐于餐桌旁,眼前的佳肴不仅是味蕾的盛宴,更是心灵慰藉的港湾。静坐于沙发,一曲悠扬的琴声如溪水潺潺。步入卧室的私人衣帽间,则是另一番天地,它不仅仅是衣物的栖息地,更是自我风格与品味的完美展现.....

这,便是装修的深层含义——不仅仅是对空间的重塑,更是对生活态度的细腻诠释。

下叠联排别墅,得天独厚的布局,上层静谧雅致,下层闲适惬意,米白与咖色的木饰面交织出温暖的基调,如同午后的一缕阳光,温柔而不失力量;局部黑色的点缀,低调中彰显不凡品味。

对于这幸福的三口之家而言,是利用设计的力量,将这栋别墅打造成为一个既符合现代审美,又不失温馨氛围的理想居所,是在保留原有结构韵味的基础上,通过意式简约设计的巧妙融入,让家“焕发新生”。

设计亮点

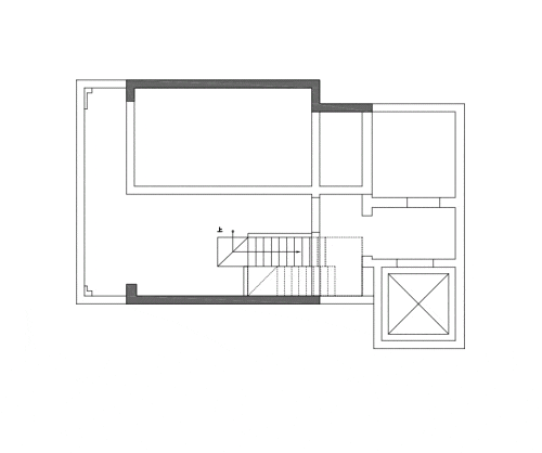
【户型图】

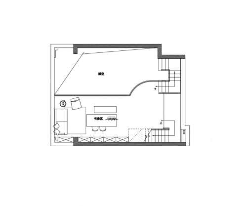
【方案图】

1.一层原横厅整体外扩,使原本紧凑的客餐厅更为宽敞开阔,厨房改开放式,解决餐厅的局促,餐厨的互通性和使用性更舒适;

2.原楼梯正对的墙体拆掉改做收纳柜,连着厨房厨柜一体,整体性更好;

3.原北面的房间改做衣帽间,套进主卧一体,原来靠次卫生间的设备间扩开来改次卫;

4.地下室做部分挑空,夹层空间是采光最好,做书房功能,更多的是他们女儿的阅读区,负二层就留白做个大空间,留投影区。

地下室

对于别墅来说三人住空间绰绰有余,除日常功能外的其他娱乐需求也不多,我们根据业主家的生活情况进行了分析和商议,最后地下室保留了采光最足的方案,做部分挑空。入户门对面设一扇波纹玻璃隔断,保护内部的隐私,左侧靠墙放坐凳,免弯腰换鞋。靠墙定制收纳柜,鞋凳正对面柜体中空设操作台,随手放一些小物件,柜底留空放鞋更便捷。

地下室夹层空间是采光最好,是最舒服的空间,于是定为书房,平时更多的是业主女儿的阅读区,大台面书桌和舒适布艺沙发营造舒适阅读空间。负二层就留白做个大空间,设影视厅,靠墙定制原木收纳柜,满足业主收纳需求,释放一层区域的空间,让客厅更显大。白色布艺沙发、特别订购的条纹懒人沙发,不同造型的沙发或座椅为绝佳观影体验提供惬意环境。

客厅

将客餐厅区域巧妙融合为一体化开放空间。通过拆除冗余墙体与阳台隔墙,原横厅得以全面延展,瞬间释放了空间的束缚感,营造出更加开阔明亮的居住环境。

客厅选用了经典的白色作为电视背景墙的主色调,辅以咖啡色原木柜体,自然温润的木质元素与纯净的白色相得益彰,既展现了简约而不失温馨的居家氛围,又巧妙地增加了储物功能。中央的茶几也是亮眼的存在,大理石与钢化玻璃的拼接,为简奢而生,以规整而简洁的线条完美融入整体空间设计中,又确保了空间的通透性与流动性,为日常休闲提供了舒适的场所。

厨餐厅

将原本紧促厨房伸展开来,打造开放式厨房,L型设计,空间利用更高效性,从冰箱拿取,水池洗切,灶台烹饪,最后盛放在厨餐厅中央区域的长桌,一切都井井有条,动线超顺滑。大量的橱柜和抽屉,从而提供了充足的存储空间。餐厅上方的直线型吊灯与长餐桌相呼应,使得空间更加和谐统一。

一层北区

原楼梯正对的墙体拆掉改做收纳柜,连着厨房厨柜一体,整体性更好,中空做黑色区分,内嵌灯带补充照明,小台面放闲散物品,也在转角处作为一个小夜灯,照亮夜晚中的家。卫生间干湿分离,卫生间还是保留干湿分离的结构,不做改变,整体装修与简约风相适配。原北卧室改成多功能房,也是业主女儿的画室兼琴房。

二层

二层空间规划精心考量,保留了两个南向卧室——主卧与女儿房,确保每间卧室都能沐浴在充足的阳光下,享受自然光的温柔拥抱。主卧入口的巧妙调整,由侧面迁移至楼梯对面,这一变动不仅优化了动线,还通过墙体外移,将多出的面积作为向衣帽间的通道,使其无缝衔接至宽敞的衣帽间,大套间的设计因此更显完整。

主卧的飘窗被精心设计成一个休闲的避风港,铺设上柔软的垫子,瞬间转变为一个温馨舒适的阅读或小憩角落。为了进一步提升这一空间的实用性,特意在飘窗旁的墙体上掏空,打造出精致的壁龛,不仅增添了空间的层次感,还巧妙地融入了收纳功能,让每一件小物件都能找到它的归属。

一间独立的衣帽间,依旧不能满足业主对储物空间的需求。于是主卧室的宽度优势被充分利用,床尾区域被精心规划为一整排衣柜的所在。这排衣柜不仅满足了日常换洗衣物的便捷存放需求,还通过其大容量设计,有效分担了衣帽间的收纳压力,使得四季更迭的衣物都能得到妥善安置,衣帽间则更加专注于存放换季衣物,整体收纳体系既高效又井然有序。


更多新闻

MORE NEWS

  • 100平公寓房翻新案例丨夏日里的一抹清凉,给老房子新的活力

    查看详情
  • 小户型两房装修案例丨转圜有余的厨房+灵活的餐厅书房=英伦小屋

    查看详情
  • 美式大宅夏季装修参考丨告别漏水的老旧格局,搬进浪漫四房新家

    查看详情
  • 联排别墅室内设计丨Gentleman和Lady的美好相遇,来一杯下午茶

    查看详情