X




>

《裕政路奶油风》 1114次

设计理念

HOUZZ INTERIOR DESIGN IDEAS

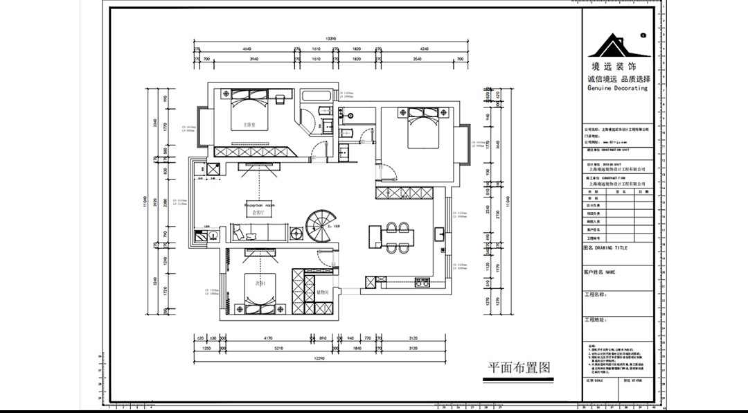
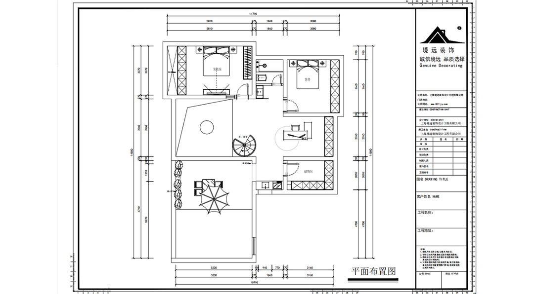
本案是套顶层复式大公寓,现代高级质感。女业主想要家的感觉是“温馨、明亮、宜居”,因此设计师选用温柔奶油杏米色系,打造多层次现代风格。三代人宜居,不同空间,各自舒适。

房屋详情

HOME DETAILS

小区:裕政路
户型: 别墅
面积:100~130㎡
风格:轻奢风格
设计师:贾利娟
所在区:奉贤区

贾利娟

首席设计师

经验:从业13年 价格:160~300/㎡
擅长:美式 现代简约 轻奢
294 0 写评论

相关案例

RELATED CASES

该设计师更多案例 该户型其他案例 该风格其他案例
还可以输入200字
  • 加载更多︾